Straks innflyttingsklart!
Nykkelklar einebustad med stor tomt og dobbel carport.

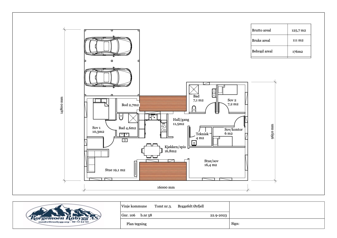
Nykkelinformasjon

Heilt ny og innflyttingsklar einebustad for sal
No kan du sikre deg hus på ei av dei flottaste tomtene i det kommunale byggjefeltet i Øyfjell.
Flyt rett inn i eit nytt, brukarvenleg, vedlikehaldsenkelt og energieffektivt bustadhus med dobbel carport.
Huset er over eit plan med to bad, tre soverom (mogelegheit for fire) og ei moderne romløysing.
Bustaden er bygd med moderne teknikkar.
Hovudvarmekjelda er vedomn i kombinasjon med vannbåren varme. Ventilasjon med varmegjenvinning.
Den store tomta på 2,4 mål gjev god anledning for å utvikle området etter eige ynskje.
Eigedommen er i utgangspunktet ei naturtomt. Området rundt huset er grusa/sådd til etter bygging.
Huset er svært godt eigna for familiar, men og for einslege eller godt vaksne med behov for ekstra soverom, kontor eller berre litt godt med plass.
Løysingar utvendig er gjort med fokus på bekymringsfritt vedlikehald; utvendig beisa furukledning, lakkera ståltakrenner/beslag og impregnera terrassedekke.
Alle val av materialar er og gjort med tanke på lang levetid.
Innreiing på kjøkken og bad er frå Vest-Telemark, med heiltre i skrog og måla MDF-frontar. Benkeplater er olja eik.
På golva er det einstavs eikeparkett. Gangen/entréen er flislagt.
Begge bada har Fibo baderomsplater på veggane og flislagde golv.
Det er og klargjort grusfundament for enkelt å kunne utvide terrassen.
I prosjektet er det nytta lokale handverksbedrifter:
- Rorgemoen Råbygg AS
- Vinje Rør AS
- Rauland elektriske AS
- Vinje Maskin AS
- Kyrkjebø Trevare
- Hyttedalen AS
- Norsjø Sag og Høvleri AS
- Øyfjell Sag og Høvleri AS


